12529
Schönefeld
„barrierefreier Neubau´2025“ – mit großer Sonnenterrasse, Balkon, EBK, TG-Stellplatz
1.398 € Kaltmiete
1
1
1
0
3
Die neu entstandene Wohnanlage „Stadthäuser am Park“ befindet sich in der Gemeinde Schönefeld, direkt vor den Türen Berlins. Auf Grund der Stadtnähe und sehr guten Verkehrsanbindung entwickelt sich das Wohngebiet zu einem sehr attraktiven Wohnstandort mit Gartenstadtcharakter. Die vielen entstandenen Neubauten sprechen für die Beliebtheit der Wohngegend. Die Buslinien 741 und 742 sind fußläufig gut zu erreichen, die eine schnelle Verbindung nach Berlin und in die umliegenden Städte ermöglichen. Die Autobahn A113 ist ebenfalls nur wenige Minuten entfernt und sorgt für eine unkomplizierte Erreichbarkeit des Berliner Stadtzentrums sowie des Flughafens Berlin Brandenburg (BER). Die Umgebung der Wohnanlage zeichnet sich durch eine Vielzahl von Freizeitmöglichkeiten aus. Zahlreiche Parks und Grünflächen laden zu Spaziergängen, Sportaktivitäten oder einfach zum Entspannen im Freien ein. Für Familien sind Schulen, Kindergärten und Spielplätze in der Nähe vorhanden, was die Lage besonders attraktiv macht. Einkaufsmöglichkeiten sind ebenfalls gut erreichbar: Supermärkte, Fachgeschäfte und Restaurants bieten alles, was man für den täglichen Bedarf benötigt. Darüber hinaus profitieren die Bewohner von der Nähe zu verschiedenen kulturellen Einrichtungen und Freizeitangeboten, die das Leben in Schönefeld bereichern.
Der moderne Wohnkomplex besteht aus neun Mehrfamilienhäusern, die sich derzeit in der finalen Fertigstellungsphase befinden. Inmitten der Anlage liegt ein kleiner Spielplatz, der sich ideal für Familien eignet. Außerdem befindet sich hier der Zugang zur Tiefgarage. Alle Gebäude sind unterkellert und verfügen über praktische Fahrradabstellräume sowie großzügige Kellerabteile, die den Bewohnern zusätzlichen Stauraum zur privaten Nutzung bieten.
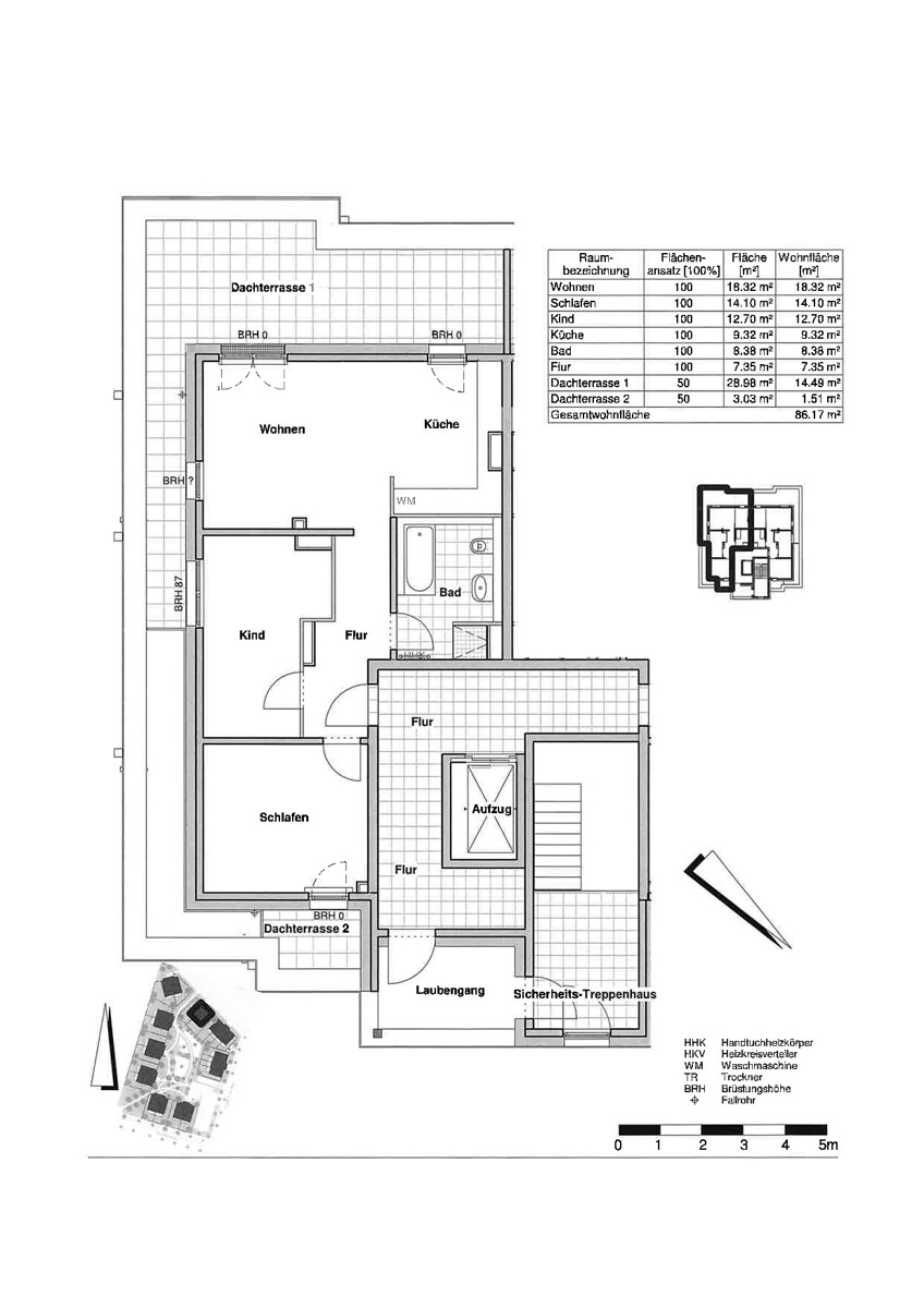
Die angebotene Wohnung befindet sich in der 3. Etage (Dachgeschoss) und ist bequem mit dem Aufzug erreichbar. Vom Flur aus gelangen Sie in das offen gestaltete Wohnzimmer (ca. 27 m²) mit integrierter Küchenecke, das geräumige Kinderzimmer (ca. 12 m²), das Schlafzimmer mit kleinem Balkon sowie das innenliegende Badezimmer.
Ein besonderes Highlight ist die großzügige Süd-/Südwest-Terrasse (ca. 28 m²), die zum Entspannen und Verweilen einlädt. Von hier aus genießen Sie einen weiten Blick über die gepflegte Wohnanlage. In der angegebenen Wohnfläche von ca. 86,17 m² ist die Terrassenfläche zur Hälfte (ca. 14 m²) angerechnet.
Das modern geflieste Badezimmer ist mit einer Badewanne, einer ebenerdigen Dusche sowie einem Hänge-WC ausgestattet und präsentiert sich in zeitgemäßem Design. Eine moderne Einbauküche von Nobila inklusive Kühlschrank, Herd, Dunstabzugshaube und Spühlmaschine wurde bestellt und wird im Februar 2026 eingebaut.
In allen Wohnräumen wurde hochwertiger Laminatfußboden verlegt, der nicht nur optisch ansprechend ist, sondern sich auch durch seine Pflegeleichtigkeit auszeichnet. Die Beheizung der Wohnung erfolgt über eine separat steuerbare Fußbodenheizung, die für ein angenehmes Wohnklima sorgt. Zusätzlich stehen im Wohn- und Schlafzimmer LAN-Anschlüsse für eine stabile und schnelle Internetverbindung zur Verfügung. Sämtliche Fenster sind mit elektrisch bedienbaren Rollläden ausgestattet, die Komfort und Sicherheit gleichermaßen erhöhen.
Zur Wohnung gehört ein TG-Stellplatz der optional für 100€ mtl. anzumieten.
– Zentralheizung + Warmwasser
– Fußbodenheizung
– großer Sonnenterrasse (ca. 28m²)
– kleiner Balkon vom Schlafzimmer
– Laminatfußboden
– gefl. Wannenbad mit separater Dusche
– Rollläden (elektrisch)
– Videogegensprechanlage
– Telefon- und Kabelanschluss
– großer Keller
– Tiefgaragenstellplatz (Nr. 63), 100,00 € mtl.
Folgen Sie uns auch auf unserem Instagram Kanal (https://www.instagram.com/werneburg_immobilien/), um immer über unsere neuesten Immobilien informiert zu werden.
Wir unterstützen Sie professionell in allen Angelegenheiten und vermitteln Ihre Immobilie zum bestmöglichen Preis. Sie können sich zurücklehnen, denn wir zeigen Ihnen effektive Maßnahmen für eine erfolgreiche Vermittlung. Wir möchten Ihnen damit das Gefühl von Sicherheit und Transparenz vermitteln.
Die Firma WERNEBURG IMMOBILIEN ist Ihr starker Partner beim Verkauf, der Vermietung und der Bewertung Ihrer Immobilie. Wir beraten Sie umfangreich und kostenlos in unserem Büro, am Telefon oder per E-Mail (info@werneburg-immobilien.de). Frau Schewe freut sich auf Ihren Anruf, Tel. 030-666 55 666.
Teilen auf
Objektangaben
Objektnummer:8036
Wohnfläche:86,17 m²
Verfügbar ab:ab sofort
Etage:3
Zimmer:3,0
Balkone:1,0
Terrassen:1,0
Stellplätze:1,0
Kosten
Kaltmiete:1.398,00 €
Nettokaltmiete:1.398,00 €
Nebenkosten:300,00 €
Warm-/Endmiete:1.698,00 €
Heizkosten enthalten:Ja
Kaution:4.194,00 €
Ausstattung
Zustand:Erstbezug
Baujahr:2025
Küche:Einbauküche
Boden:Laminat
Heizungsart:Zentralheizung
Befeuerung:Fernwärme
Unterkellert:Ja
Bauweise:Massiv
Fahrstuhl:Personenaufzug
Ausweistyp:Bedarf
Effizienzklasse:B
Gültig bis:17.08.2035
Endenergiebedarf:60.60 kWh/(m²*a)
Baujahr:2025
Ihre Anfrage
* Pflichtfelder































