10119
Berlin-Mitte
„Provisionsfrei für den Käufer“ Vermietete Wohnung in City-Lage, unweit dem Volkspark am Weinberg***Balkon***Wannenbad***
279.000 €
0
1
1
3
Die Wohnung befindet sich im pulsierenden Stadtteil Berlin-Mitte, einem der zentralsten und lebhaftesten Viertel der Hauptstadt. Diese Lage bietet eine hervorragende Anbindung an den öffentlichen Nahverkehr, mit mehreren U-Bahn- und Tramhaltestellen in unmittelbarer Nähe, die eine schnelle Erreichbarkeit aller wichtigen Punkte Berlins ermöglichen. In der Umgebung finden Sie eine Vielzahl von Einkaufsmöglichkeiten, darunter Supermärkte, Boutiquen und Wochenmärkte, die frische Produkte und lokale Spezialitäten anbieten. Die nahegelegene Schönhauser Allee ist bekannt für ihre vielfältigen Geschäfte, Cafés und Restaurants, die zum Verweilen einladen und eine breite Palette an kulinarischen Angeboten bieten. Kulturell hat Berlin-Mitte viel zu bieten: Museen, Galerien und historische Sehenswürdigkeiten sind nur einen kurzen Spaziergang entfernt. Der berühmte Hackescher Markt mit seinen zahlreichen Bars und Clubs ist ebenfalls in der Nähe und sorgt für ein lebendiges Nachtleben. Für Erholungssuchende gibt es zahlreiche Parks und Grünflächen in der Umgebung, wie den Volkspark Friedrichshain oder den Mauerpark, die ideale Orte für entspannte Stunden im Freien bieten.
Die unterkellerte Wohnanlage (BJ`1955) besteht aus zwei Hauseingängen. Hinter dem Haus erstreckt sich ein parkähnlich angelegter Gemeinschaftsgarten, der den Bewohnern zur Nutzung zur Verfügung steht.
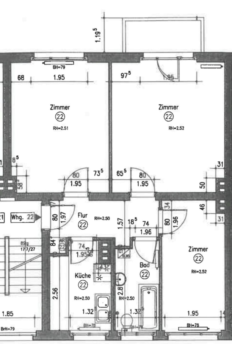
Die Wohnung befindet sich in der 4. Etage (ohne Fahrstuhl) und überzeugt durch seine durchdachte Raumaufteilung. Vom Flur aus sind das großzügige Wohnzimmer (ca. 18 m²), mit Zugang zum Sonnenbalkon, das geräumige Schlafzimmer (ca. 16 m²) sowie ein zweites Schlafzimmer (ca. 10 m²), die Küche und das Badezimmer zu betreten. Der Balkon gibt einen herrlichen Weitblick in die Wohnanlage wieder. Das geflieste Tageslichtbad verfügt über eine Badewanne, ein Handwaschbecken sowie ein WC und bietet zudem einen Anschluss für eine Waschmaschine. In der gesamten Wohnung, bis auf Küche und Bad, liegt Teppichboden.
Telefon- und Kabelanschlüsse sind vorhanden. Die Beheizung erfolgt über eine Gasetagenheizung. Ein Kellerabteil steht ebenfalls zur Verfügung.
Die derzeitige Mieterin lebt seit 57 Jahren in der Wohnung (Erstbezug). Aufgrund der nachträglichen Aufteilung nach WEG, besteht eine Kündigungsfrist von 10 Jahren bei einer Eigenbedarfskündigung.
Der Mieter zahlt eine mtl. Gesamtmiete von 530,48 €. Das Wohngeld beläuft sich auf 284,68 €, inkl. 104,02 € Instandhaltungsrücklage.
Auf Wunsch des Mieters können wir keine Innenbilder zur Verfügung stellen. Wir stellen daher Bilder einer spiegelverkehrten Wohnung zur Verfügung, die vom Schnitt und der Größe identisch ist.
Die Wohnung ist ideal für die Eigennutzung, in einem überschaubaren Zeitraum, geeignet.
– Gasetagenheizung
– Balkon (Süd/Südwest)
– Teppichboden
– gefl. Wannenbad mit WM-Anschluss
– Küche + Bad mit Fenster
– Telefonanschluss
– Kabelanschluss
– Keller
Die Wohnung wird provisionsfrei für den Käufer verkauft. Alle genannten Angaben zum Objekt beruhen auf den Angaben des Eigentümers.
Folgen Sie uns auch auf unserem Instagram Kanal (https://www.instagram.com/werneburg_immobilien/), um immer über unsere neuesten Immobilien informiert zu werden.
Wir unterstützen Sie professionell in allen Angelegenheiten und vermitteln Ihre Immobilie zum bestmöglichen Preis. Sie können sich zurücklehnen, denn wir zeigen Ihnen effektive Maßnahmen für eine erfolgreiche Vermittlung. Wir möchten Ihnen damit das Gefühl von Sicherheit und Transparenz vermitteln.
Die Firma WERNEBURG IMMOBILIEN ist Ihr starker Partner beim Verkauf, der Vermietung und der Bewertung Ihrer Immobilie. Wir beraten Sie umfangreich und kostenlos in unserem Büro, am Telefon oder per E-Mail (info@werneburg-immobilien.de). Frau Schewe freut sich auf Ihren Anruf, Tel. 030-666 55 666.
Teilen auf
Objektangaben
Objektnummer:8041
Wohnfläche:58,97 m²
Vermietet:Ja
Etage:4
Zimmer:3,0
Badezimmer:1,0
Balkone:1,0
Kosten
Kaufpreis:279.000,00 €
Warm-/Endmiete:530,48 €
Hausgeld:284,68 €
Käuferprovision: provisionsfrei
Ausstattung
Baujahr:1955
Boden:Teppich
Heizungsart:Etagenheizung
Befeuerung:Gas
Unterkellert:Ja
Bauweise:Massiv
Ausweistyp:Verbrauch
Energieträger:Gas
Effizienzklasse:C
Gültig bis:14.04.2030
Endenergieverbrauch:93.50 kWh/(m²*a)
Baujahr:1955
Ihre Anfrage
* Pflichtfelder























