12439
Berlin-Treptow
Gut vermietete Wohnung mit Wintergarten, unweit der Spree ***EBK***Lift***
249.000 €
0
0
2
Die Wohnung befindet sich im Berliner Ortsteil Niederschöneweide im Bezirk Treptow-Köpenick. Aufgrund seiner Nähe zum Stadtzentrum, dem Wirtschafts- und Wissenschaftsstandort Adlershof sowie dem Flughafen BER ist die Wohngegend sehr beliebt. In unmittelbarer Nähe verläuft die Spree, deren Ufer zu Spaziergängen, sportlichen Aktivitäten und erholsamen Stunden im Freien einlädt. Zahlreiche Parkanlagen und Grünflächen prägen das Wohnumfeld und tragen maßgeblich zu einer hohen Lebensqualität bei.
Die Anbindung an den öffentlichen Nahverkehr ist sehr gut: Straßenbahn- und Buslinien sind fußläufig erreichbar, ebenso der S-Bahnhof Schöneweide, der eine schnelle Verbindung in die Berliner Innenstadt sowie in weitere Stadtteile gewährleistet. Einkaufsmöglichkeiten für den täglichen Bedarf, Supermärkte, Bäckereien, Cafés sowie Ärzte und Apotheken befinden sich in der näheren Umgebung.
Die zum Verkauf stehende Wohnung befindet sich in der 1. Etage eines im Jahr 1995 errichteten Mehrfamilienhauses und ist vermietet. Der Innenhof der Wohnanlage ist großzügig gestaltet und ansprechend begrünt. Ein Fahrstuhl im Gebäude sorgt für einen komfortablen Zugang zu allen Etagen.
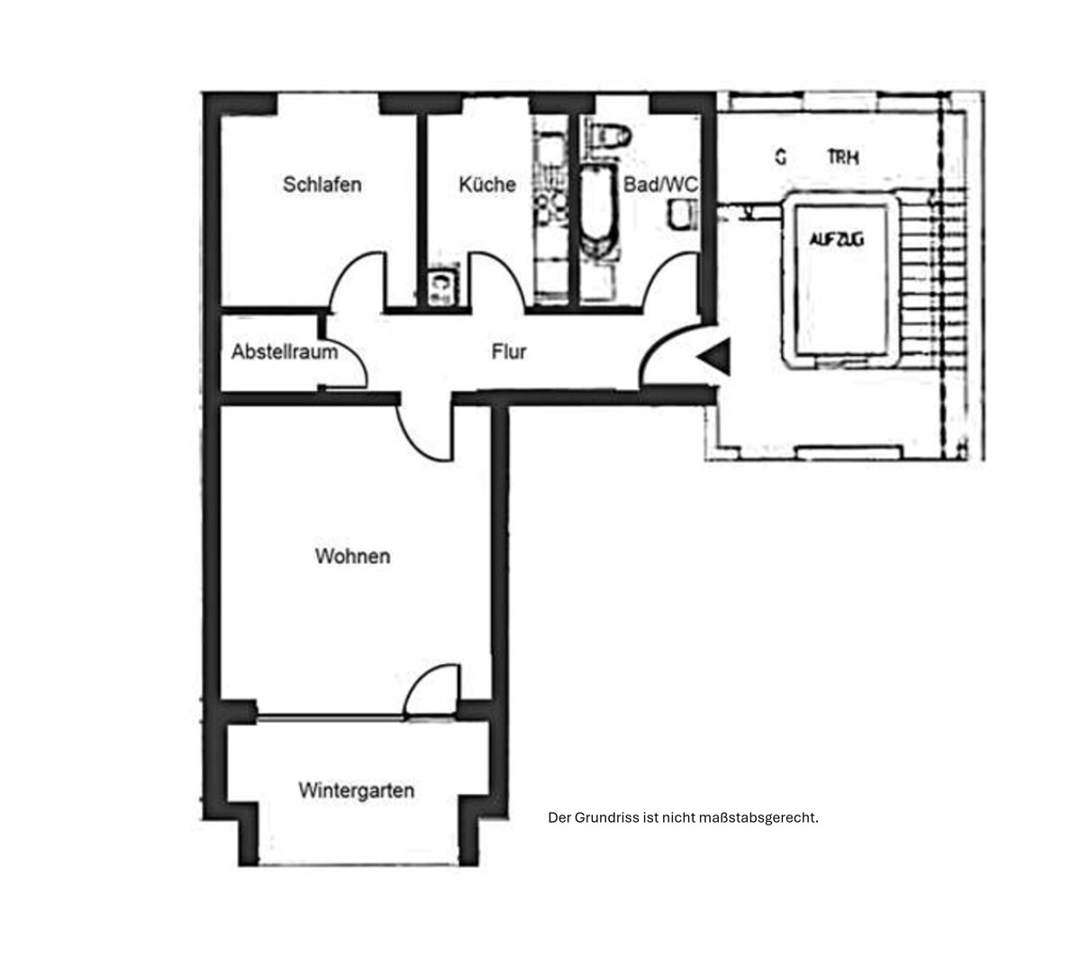
Die Wohnung überzeugt durch einen funktionalen und gut geschnittenen Grundriss. Das Wohnzimmer ist mit einem Parkettfußboden ausgestattet und bietet einen angenehmen Wohnkomfort. Im Schlafzimmer wurde ein Korkfußboden verlegt, der für ein behagliches Raumgefühl sorgt. Die vorhandene Einbauküche gehört zur Wohnung und ist im Kaufpreis enthalten. Das Tageslichtbad ist zweckmäßig ausgestattet und verfügt über eine Badewanne, ein WC sowie ein Handwaschbecken.
Zur Wohnung gehört ein Kellerraum, der zusätzlichen Stauraum bietet. Auf dem Grundstück stehen Kfz-Stellplätze zur Verfügung, ein Stellplatz ist der Wohnung jedoch nicht zugeordnet.
Der Mieter bewohnt die Wohnung seit 2023 und zahlt eine monatliche Kaltmiete in Höhe von 701,47 € zuzüglich 246,89 € Nebenkosten, was einer Warmmiete von insgesamt 948,36 € entspricht. Das monatliche Wohngeld beträgt 314,51 €, darin enthalten sind 25,82 € Instandhaltungsrücklage.
Ein Auszug des Mieters ist nach Rücksprache und Einigung möglich.
– Gaszentralheizung
– Wintergarten (Süd)
– Laminatfußboden/Parkettfußboden
– EBK mit E-Geräten
– gefl. Wannenbad
– Küche + Bad mit Fenster
– Kammer
– Telefon-/Kabelanschluss
– Aufzug
– Keller
Die Provision für den Käufer beträgt 3,57 % vom Kaufpreis inkl. 19% MwSt. und ist an die Firma WERNEBURG IMMOBILIEN zu zahlen. Die Provision für den Verkäufer beträgt 3,57 % vom Kaufpreis inkl. 19% MwSt. und ist an die Firma WERNEBURG IMMOBILIEN zu zahlen. Alle genannten Angaben zum Objekt beruhen auf den Angaben des Eigentümers.
Folgen Sie uns auch auf unserem Instagram Kanal (https://www.instagram.com/werneburg_immobilien/), um immer über unsere neuesten Immobilien informiert zu werden.
Wir unterstützen Sie professionell in allen Angelegenheiten und vermitteln Ihre Immobilie zum bestmöglichen Preis. Sie können sich zurücklehnen, denn wir zeigen Ihnen effektive Maßnahmen für eine erfolgreiche Vermittlung. Wir möchten Ihnen damit das Gefühl von Sicherheit und Transparenz vermitteln.
Die Firma WERNEBURG IMMOBILIEN ist Ihr starker Partner beim Verkauf, der Vermietung und der Bewertung Ihrer Immobilie. Wir beraten Sie umfangreich und kostenlos in unserem Büro, am Telefon oder per E-Mail (info@werneburg-immobilien.de). Frau Schewe freut sich auf Ihren Anruf, Tel. 030-666 55 666.
Teilen auf
Objektangaben
Objektnummer:8120
Wohnfläche:66,68 m²
Vermietet:Ja
Etage:1
Zimmer:2,0
Kosten
Kaufpreis:249.000,00 €
Nettokaltmiete:701,47 €
Warm-/Endmiete:948,36 €
Hausgeld:314,51 €
Käuferprovision: 3,57% vom Kaufpreis inkl. 19% MwSt.
Ausstattung
Baujahr:1995
Küche:Einbauküche
Boden:Parkett, Laminat
Heizungsart:Zentralheizung
Befeuerung:Gas
Unterkellert:Ja
Bauweise:Massiv
Fahrstuhl:Personenaufzug
Ausweistyp:Verbrauch
Energieträger:Erdgas_schwer
Effizienzklasse:D
Gültig bis:07.04.2029
Endenergieverbrauch:126.00 kWh/(m²*a)
Baujahr:1995
Ihre Anfrage
* Pflichtfelder























