12489
Berlin-Treptow
Gut vermietete Balkonwohnung in zentraler Wohnlage, unweit der WISTA
249.000 €
0
1
0
3
Die Wohnung befindet sich in attraktiver Lage in Treptow-Adlershof, unweit des S-Bahnhofs Adlershof. Der Stadtteil gilt als bedeutender Standort für Wissenschaft, Wirtschaft und Medien und erfreut sich einer stetig wachsenden Nachfrage.
Dank der hervorragenden Verkehrsanbindung sind sowohl die Innenstadt als auch der Flughafen BER in kurzer Zeit erreichbar. Der S-Bahnhof Adlershof ist bequem fußläufig sowie mit den Tramlinien 61 und 63 oder der Buslinie 164 zu erreichen. Zudem besteht eine sehr gute Anbindung an die Stadtautobahn.
Zahlreiche Grün- und Erholungsflächen wie der Stadtpark Adlershof oder die Köllnische Heide befinden sich in unmittelbarer Umgebung und bieten vielfältige Freizeit- und Erholungsmöglichkeiten. Eine sehr gute Nahversorgung ist durch die nahegelegenen Marktpassagen sowie das Adlergestell gewährleistet. Darüber hinaus laden diverse Restaurants, Cafés und weitere Freizeitangebote in fußläufiger Entfernung zum Verweilen ein und unterstreichen die hohe Wohn- und Standortqualität dieser Lage.
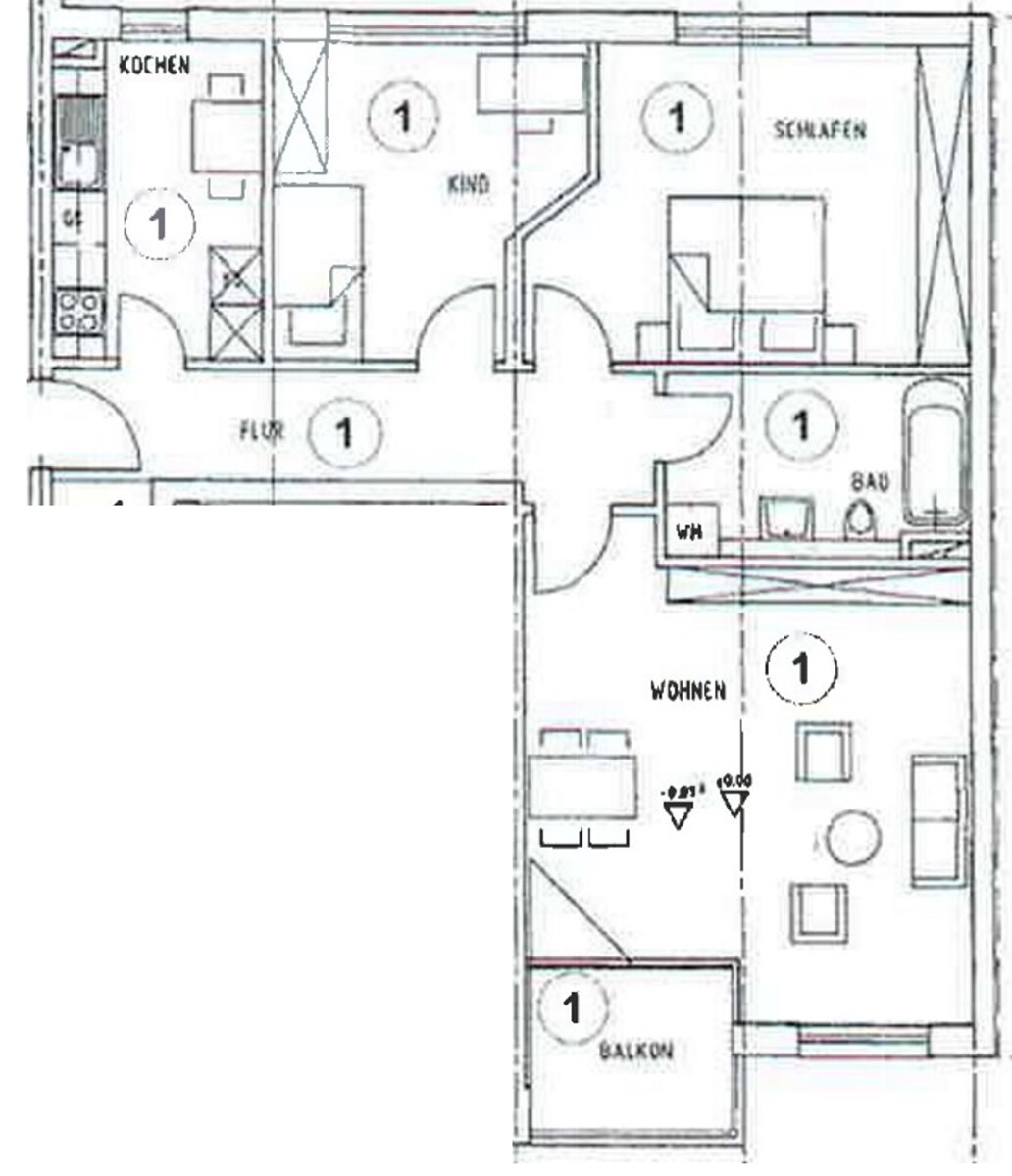
Die Wohnung befindet sich im Erdgeschoss eines im Jahr 1995 errichteten Mehrfamilienhauses mit begrüntem Innenhof auf der Rückseite des Gebäudes. Mit einer Wohnfläche von ca. 78,80 m² bietet sie ein großzügiges und gut nutzbares Raumangebot.
Vom geräumigen Flur aus sind alle Räume bequem erreichbar. Das lichtdurchflutete Wohnzimmer mit ca. 25 m² verfügt über einen direkten Zugang zum Sonnenbalkon und ist ruhig zum Innenhof ausgerichtet. Darüber hinaus stehen ein geräumiges Schlafzimmer mit ca. 18 m² sowie ein Kinderzimmer mit ca. 15 m² zur Verfügung. Die Küche mit ca. 11 m² ist mit einer Einbauküche ausgestattet, die Bestandteil der Mietsache ist.
Das innenliegende Badezimmer ist mit einer Badewanne, einem WC und einem Handwaschbecken ausgestattet und verfügt über einen Anschluss für eine Waschmaschine.
Im Wohnzimmer ist Parkettfußboden verlegt, das Schlafzimmer ist mit PVC-Fußboden ausgestattet. Der Laminatfußboden im Kinderzimmer wurde vom Mieter eigenständig verlegt. Beide Schlafzimmer sind zur Straßenseite ausgerichtet und mit Jalousien versehen, während das Wohnzimmer ruhig zum Innenhof liegt.
Die Beheizung erfolgt über eine zentrale Heizungsanlage. Ein Telefon- sowie Kabelanschluss sind vorhanden. Zusätzlich steht dem Mieter ein Kellerraum zur Nutzung zur Verfügung.
Die Wohnung ist seit 2009 vermietet. Seit dem 01.12.2025 beträgt die monatliche Kaltmiete 735,20 € zzgl. 270,08 € Nebenkosten. Das monatliche Wohngeld beläuft sich auf 339,66 €, inklusive einer Instandhaltungsrücklage in Höhe von 26,03 €.
– Zentralheizung + Warmwasser
– Balkon (Süd)
– Laminat/Parkett/PVC
– EBK mit E-Geräten
– gefl. Wannenbad mit WM-Anschluss
– Küche mit Fenster
– Telefonanschluss
– Kabelanschluss
– Keller
Die Provision für den Käufer beträgt 3,57 % vom Kaufpreis inkl. 19% MwSt. und ist an die Firma WERNEBURG IMMOBILIEN zu zahlen. Die Provision für den Verkäufer beträgt 3,57 % vom Kaufpreis inkl. 19% MwSt. und ist an die Firma WERNEBURG IMMOBILIEN zu zahlen. Alle genannten Angaben zum Objekt beruhen auf den Angaben des Eigentümers.
Folgen Sie uns auch auf unserem Instagram Kanal (https://www.instagram.com/werneburg_immobilien/), um immer über unsere neuesten Immobilien informiert zu werden.
Wir unterstützen Sie professionell in allen Angelegenheiten und vermitteln Ihre Immobilie zum bestmöglichen Preis. Sie können sich zurücklehnen, denn wir zeigen Ihnen effektive Maßnahmen für eine erfolgreiche Vermittlung. Wir möchten Ihnen damit das Gefühl von Sicherheit und Transparenz vermitteln.
Die Firma WERNEBURG IMMOBILIEN ist Ihr starker Partner beim Verkauf, der Vermietung und der Bewertung Ihrer Immobilie. Wir beraten Sie umfangreich und kostenlos in unserem Büro, am Telefon oder per E-Mail (info@werneburg-immobilien.de). Frau Schewe freut sich auf Ihren Anruf, Tel. 030-666 55 666.
Teilen auf
Objektangaben
Objektnummer:8154
Wohnfläche:78,80 m²
Vermietet:Ja
Vermietbare Fläche:78,80 m²
Etage:0
Zimmer:3,0
Balkone:1,0
Kosten
Kaufpreis:249.000,00 €
Nettokaltmiete:735,20 €
Warm-/Endmiete:1.005,28 €
Heizkosten enthalten:Nein
Hausgeld:339,66 €
Käuferprovision: 3,57 % vom Kaufpreis inkl. 19% MwSt.
Ausstattung
Baujahr:1995
Küche:Einbauküche
Boden:Parkett, Laminat, Kunststoff
Heizungsart:Zentralheizung
Befeuerung:Fernwärme
Unterkellert:Ja
Bauweise:Massiv
Ausweistyp:Verbrauch
Energieträger:Gas
Effizienzklasse:D
Gültig bis:05.03.2029
Endenergieverbrauch:114.00 kWh/(m²*a)
Baujahr:1995
Ihre Anfrage
* Pflichtfelder






















